
With the HIAB iX.RAIL range of loader crane solutions, our company provides a wide range of products that have been specifically designed for railway network applications, from the lightest applications all the way to the recovery units. These cranes have been specifically designed for the railway applications managed by the railway logics and control system. The system delivers the highest level of safety during work in a railway environment in complicance to the many directives.

With our extensive offer of high performance lifting crane models, there is always the right one for emergency and recovery operations to be used along the railway infrastructure network. Ensure performance and precision for those delicate moments. With the HIAB iX.2758 RAIL we offer the highest lifting capacity and specially designed for this task.

Another unique point of this crane is its ability to work under catenary, it is not necessary to cut the catenary in order to carry out rescue maneuvers. One of the reasons that the crane allows working under catenary is because the profile of the arm has been designed to have the minimum overall dimensions and thanks to the elevated hook attachment , the risk of contact with the catenary is reduced.

Along with the main crane, a smaller service crane is mounted directly on the base of it. Its main function is to lift and place the necessary steel plates on the side of the vehicle.

The way in which this type of crane works allows more than one unit to work in parallel. This is due to the load control and stability of the crane, the capacity of the crane is limited depending on the position of the jacks, the superelevation and the working position of the crane boom.

The crane is equipped with the electronic control system called SPACEevo, which guarantees full compliance to the regulatory business standards. The system guarantees specific functions related to the use of the rescue crane in the railway sector.

The HIAB iX.2758 RAIL crane is equipped with a hydraulically extendable three-stage lifting boom and with a double attachment point for the hook. Thanks to the different load fixing positions, it is possible to optimize the load lifting according to the actual working conditions.

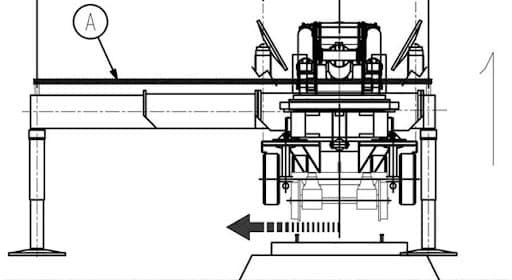
The crane includes four outriggers, one at each end of the frame. The maximum stroke length of these stabilisers is 680 mm allowing and ensuring the stability of the crane. These stabilisers have the capacity to perform a lateral translation movement of the truck of up to 4 meters.

The work under catenary is carried out thanks to the development of a hydraulic spreader beam unit made up of two independent lateral arms and a complete 360° rotation system. The main function of this work tool is to correctly orient the lifting straps and position the load in the true position of its center of gravity.

The smaller capacity models are a great example of products that suit the track maintenance application with equipment suited for allround uses, flexible for a wide variety of tasks.
Our cranes are managed by state of the art control systems that assist the operators to do the job in a safe and highly efficient way.
All the models within this iX.RAIL range can be mounted on different vehicle types:
Models: HIAB iX.112 RAIL, iX.122 RAIL, iX.142 RAIL, iX.162 RAIL, iX.192 RAIL, iX.232 RAIL, iX.262 RAIL, iX.302 RAIL, iX.362 RAIL, iX.408 RAIL, iX.558 RAIL, iX.658 RAIL, iX.858 RAIL, iX.1058 RAIL and iX.2758 RAIL.
Hiab, at the forefront of innovation, has designed many ‘project based’ developments with key customers over the years together with our team of experienced talents. In addition to the iX.RAIL standard products, we can develop customized models and solutions with our engineering department, allowing customers to find the right solution for the best railway maintenance vehicle integration or model. Our local Hiab sales offices are available to offer more assistance and guidance.